Flachdächer werden immer häufiger zum Arbeitsplatz für Solarteure, sei es für die Montage der Solargeneratoren oder für Wartungsgänge. Gerüste an das Gebäude zu stellen kann sehr aufwendig und teuer werden – vor allem, wenn es sich nur um kurze Aufenthalte auf dem Dach handelt.
Nicht selten sind die auf dem Dach agierenden Personen nicht regelmäßig mit solchen Arbeiten betraut, also nicht ausgesprochen „dachaffin“.
Prinzipiell gilt: Alle arbeitenden Personen auf dem Dach sind gegen Absturz zu sichern. Der Bauherr und Eigentümer sowie die Geschäftsführung des Installationsbetriebes sind gemeinsam in der Pflicht und für die Einhaltung aller Vorschriften zum Arbeitsschutz auf dem Dach verantwortlich.
Oft als lästig empfunden
Eine kollektive Absturzsicherung ist durchaus eine sinnvolle Alternative zu persönlichen Schutzmaßnahmen, da ihre Schutzwirkung nicht von der richtigen Anwendung abhängig ist.
Leider werden bisher viele persönliche Schutzausrüstungen gegen Absturz nicht benutzt, da sie für die zu sichernde Person lästig sind und die eigentlichen Arbeiten behindern. Also ist aus Sicht des Arbeitsschutzes ein Schutzgeländer sinnvoll, da es alle auf dem Dach befindlichen Personen zwangsweise schützt, ohne den Bewegungsspielraum einzuschränken.
EN 13374 erfüllt
Die Firma Zinco hat dafür das Schutzgeländer Fallnet ASG entwickelt. Als kollektives Seitenschutzsystem für temporäre Arbeiten erfüllt es alle Anforderungen nach EN 13374, Klasse A. Zudem wurde es von der Dekra getestet und zertifiziert. Es erfüllt auch die Empfehlungen der Argebau und der Deutschen Gesetzlichen Unfallversicherung (DGUV).
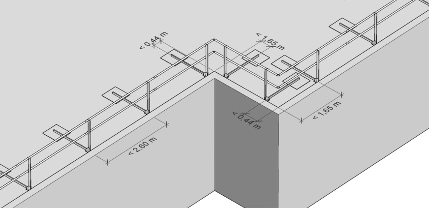
Das Arbeitsschutzgeländer aus Aluminium überzeugt durch einfache Montage, geringes Gewicht und hohe Stabilität. Zur Fixierung benötigt es keinerlei Dachdurchdringung. Das System ist für Dachneigungen bis fünf Grad einsetzbar – unabhängig vom Untergrund. Kleine Unebenheiten werden dank höhenverstellbarer Pfosten ausgeglichen.
Auch für Großprojekte nutzbar
Durch seine wenigen Bauteile, die schnelle Montage und die frei einstellbare Spannweite von bis zu 2,60 Meter zwischen den Geländerpfosten ist es sehr variabel. Gleichzeitig bietet es eine wirtschaftliche Lösung für lange Strecken und Großprojekte – nicht selten bei gewerblichen Solaranlagen.
Ein besonderer Vorteil des Arbeitsschutzgeländers Fallnet ASG ist die Möglichkeit, das Geländer senkrecht oder in einem Winkel von 67,5 Grad geneigt zu montieren, ohne die vorgeschriebene Mindestgeländerhöhe von einem Meter zu unterschreiten.
Schritt für Schritt montiert
Durch die Schrägstellung entsteht ein optisch gefälliger Dachabschluss. Je nach Blickwinkel ist das Geländer dadurch von unten unsichtbar – was mancher Architekt als Pluspunkt für die Ästhetik des Gebäudes empfinden wird.
Entwickelt und erprobt wurde das Arbeitsschutzgeländer mit erfahrenen Handwerkern. Einfache Handhabung ist ein wesentliches Prinzip. So ist das gesamte System mit nur einem Werkzeug mittels Akkuschrauber montierbar – Schritt für Schritt.
Gewünschte Neigung fixieren
Zunächst werden die Pfostenmodule der Geländerkonstruktion im Abstand von maximal 2,60 Meter auf einer Schutzmatte ausgelegt. Dann wird der bereits vormontierte Geländerpfosten lediglich noch nach oben geklappt und in der gewünschten Pfostenstellung von 90 Grad beziehungsweise 67,5 Grad Neigung fixiert.
Im Anschluss können die Pfosten bereits mit den Geländerholmen und den Zwischenholmen bestückt werden. Dazu werden diese mittels des integrierten Stoßverbinders ineinandergesteckt und mit Bohrschrauben fixiert.
Mit Stoßverbindern gesteckt
Auf die gleiche Weise werden die flexiblen Eckverbindungen montiert, die das Geländer im Bedarfsfall über Eck führen. Die Geländerpfosten sind direkt an die Attika (Attikahöhe mindestens 50 Millimeter) zu schieben.
Beträgt der Abstand vom Zwischenholm zur Attika mehr als 470 Millimeter, sind Bordbretter zu montieren.
Erforderliche Auflasten
Ist das Arbeitsschutzgeländer aufgebaut, folgt seine Ballastierung durch die Aufbringung der Dachbegrünung. Dränage-, Substrat- und Pflanzschicht kommen auf den lastverteilenden Kunststoffplatten der Pfostenausleger zu liegen und sorgen für die erforderliche Auflast.
Dabei ist das Gewicht einer „normalen“ Extensivbegrünung in der Regel ausreichend. Bei einer Dachneigung von null bis zwei Grad sind 80 Kilogramm Trockengewicht pro Quadratmeter zu beachten.
Mindestauflast durch Substrat
Bei einer Dachneigung von zwei bis fünf Prozent sind es 100 Kilogramm je Quadratmeter. Infrage kommen Zinco-Systemerde oder ein Dachbegrünungssubstrat. Diese Mindestauflast der Substratschicht gewährleistet die Lagestabilität des Geländers. Sie ist regelmäßig zu überprüfen, etwa im Rahmen der Anlagenwartung und der damit verbundenen Begehung des Daches.
Auf diese Weise ist nun ein Arbeitsschutzgeländer auf dem Dach integriert, das ohne Dachdurchdringung auskommt und damit wichtige Vorteile bringt. Die persönliche Absicherung der Dacharbeiter entfällt.
 
 Foto: ZinCo
 
 Foto: ZinCo
 
 Foto: Zinco
 
 Foto: Zinco
 
 Foto: Zinco
 
     
 
 
    